Coastalrealestateforsale

powered by Open2view.com

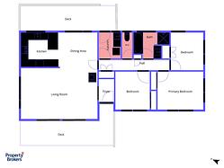
1 Delamere Drive

Bay of Plenty
3
1
N/A
N/Asqm
844sqm
1 Delamere Drive Bay of Plenty
Auction
Wednesday 29th October - 12:00PM
proudly marketed by
Michelle Stephenson
Matthew Stephenson
Property Brokers Waikato (Whakatane Branch)
Relocating and ready to sell
After some 37 years our client is making the choice to move, in this instance closer to family. Long loved and for good reason this 1980's home has everything you need; from the expansive and fully fenced yard, to the bright and open charm on offer inside, there is a lot to like. Modern elements mixed with a classic design Very generous garage with option for additional storage room Fully fenced and with space to park a motorhome/caravan Quiet and very sought after location Modern kitchen and bathroom, big ticket items done, move in ready A home for the house proud, a home you can take pride in calling your own. Our client is ready to sell and viewings welcome so don't hesitate to get in touch, otherwise attend one of our open homes. There aren't many homes that tick so many boxes at once, don't let this slip you by. Tender closes Wednesday 29th October at 12pm (no prior sale).
Question
Location
Upload by Pip Brabant
Whakatane and surrounds